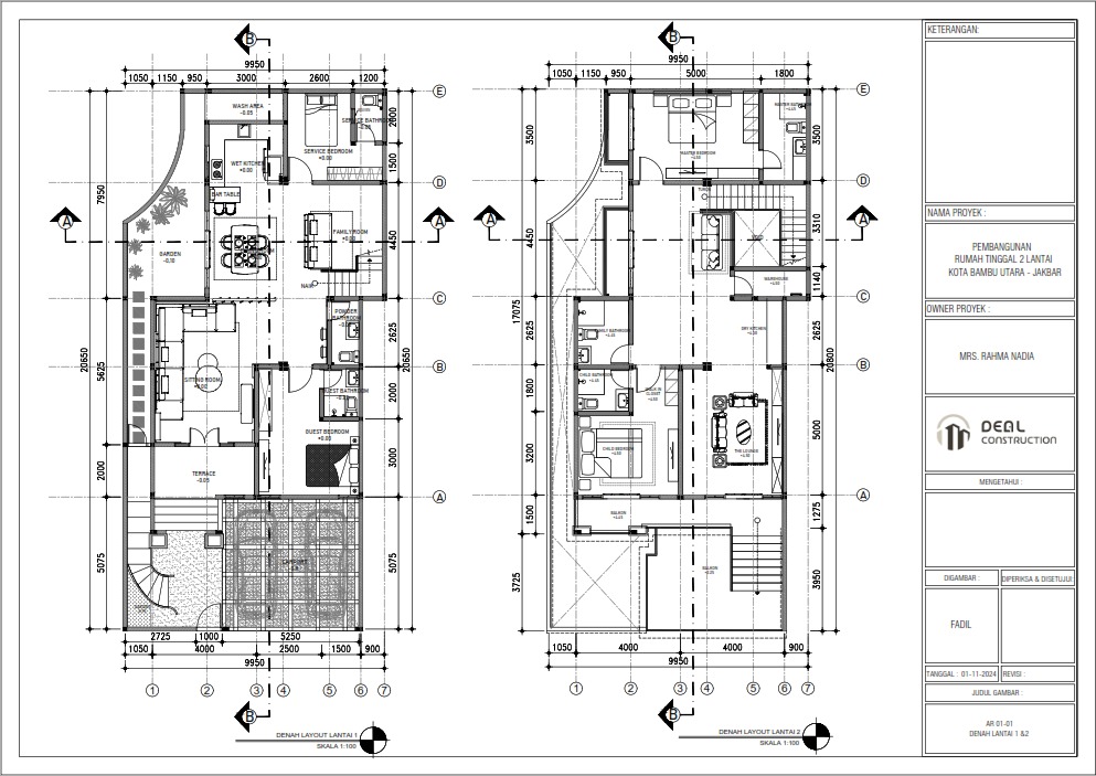
Project Mrs. RN - Jakarta Barat

Deskripsi

Wujudkan Hunian Modern Classic di Palmerah, Jakarta Barat.

Selamat datang di portofolio proyek kami! Kami dengan bangga mempersembahkan salah satu karya terbaru kami : pembangunan rumah di Palmerah, Jakarta Barat, yang mengusung konsep desain Modern Classic.

Sebagai kontraktor tepercaya, kami memiliki komitmen kuat untuk mewujudkan setiap visi klien. Proyek ini bukan hanya tentang membangun struktur, melainkan menciptakan sebuah hunian yang menggabungkan kemewahan masa lalu dengan fungsionalitas masa kini.

Apa itu Desain Modern Classic?

Desain ini merupakan perpaduan elegan antara detail arsitektur klasik yang timeless dengan garis-garis bersih dan fungsionalitas modern. Karakteristik utamanya meliputi:

  • Elegansi dan Kemewahan: Penggunaan elemen dekoratif klasik, seperti profil molding pada dinding atau pilar, yang diinterpretasikan ulang dengan sentuhan minimalis.

  • Material Berkualitas Tinggi: Kombinasi marmer, kayu, dan besi tempa yang memberikan kesan kokoh dan berkelas.

  • Garis Arsitektur Bersih: Mengadopsi prinsip modern dengan ruang terbuka, pencahayaan alami yang melimpah, dan tata letak yang efisien.

  • Palet Warna Netral: Penggunaan warna-warna kalem seperti putih, krem, abu-abu, dan sentuhan warna gelap untuk menciptakan suasana yang tenang namun berkelas.

Keunggulan Proyek Kami

  • Desain Personal dan Fungsional: Setiap sudut rumah dirancang khusus untuk memenuhi kebutuhan dan gaya hidup klien, memastikan hunian yang unik dan praktis.

  • Kualitas Pembangunan Unggul: Kami menggunakan material premium dan menerapkan standar konstruksi terbaik untuk menjamin kekuatan, ketahanan, dan keindahan bangunan jangka panjang.

  • Pengerjaan Detail dan Rapi: Tim profesional kami bekerja dengan cermat dan teliti, memastikan setiap detail arsitektur klasik dikerjakan dengan presisi tinggi.

Kami mengundang Anda untuk melihat bagaimana kami mengubah sketsa menjadi kenyataan yang menawan. Proyek ini adalah bukti nyata dedikasi kami dalam memberikan kualitas terbaik yang melampaui ekspektasi.

Jika Anda memiliki impian untuk membangun atau merenovasi rumah dengan gaya Modern Classic atau desain lainnya, kami siap membantu. Mari wujudkan hunian impian Anda bersama kami!

Hubungi Kami

Ingin bangun rumah? konsultasikan konstruksi Anda bersama kami sekarang!

chat whatsapp
image

Copyright ©2026 PT. Desain Engineering Arsitektur Logistik. CREATED BY IDVITECH